Equipement public / Maîtrise d'ouvrage publique / Mission complète / Surface SHON: 230

programme

Construction d'un centre de loisirs

 Le programme de l’opération est le suivant :

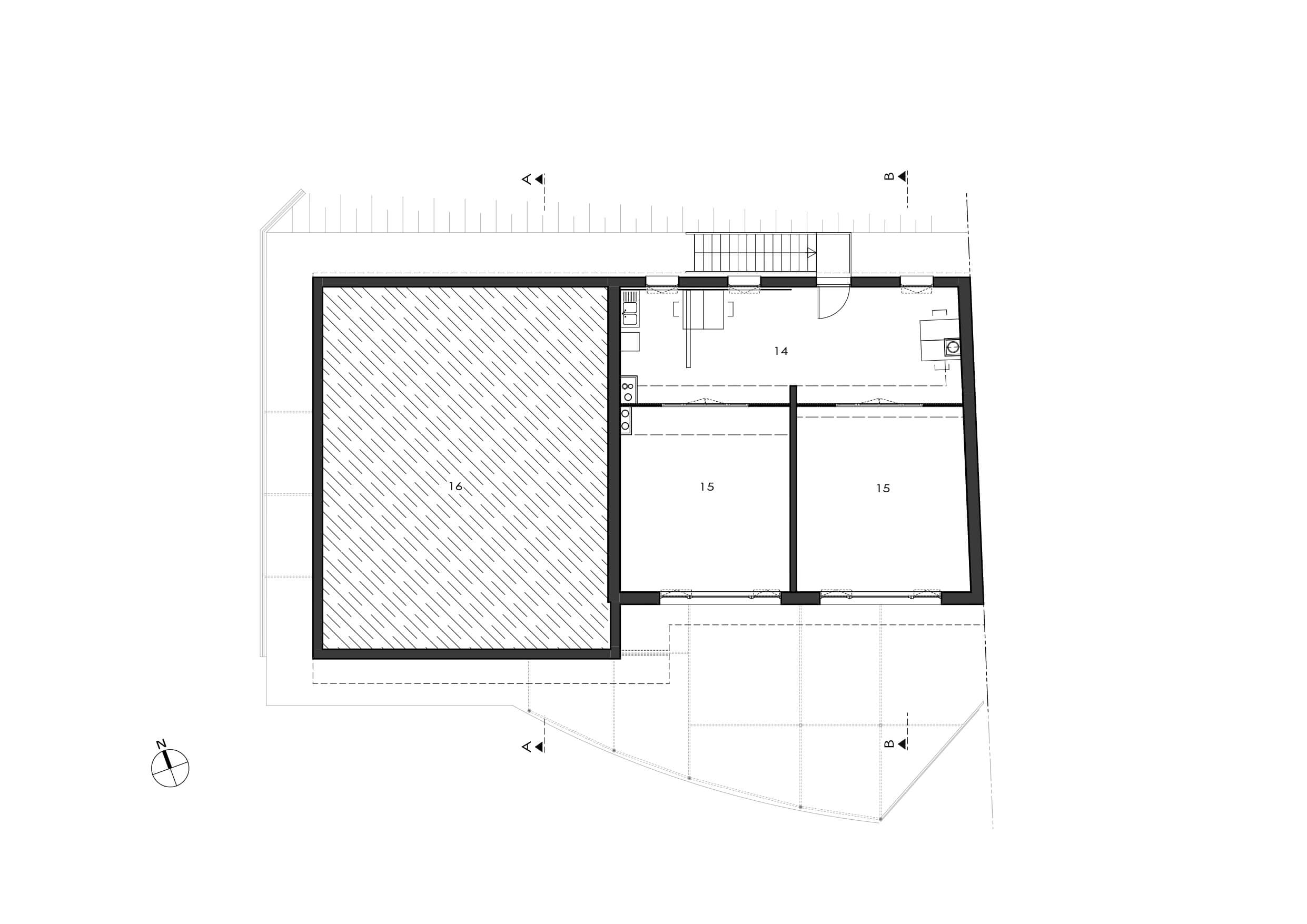
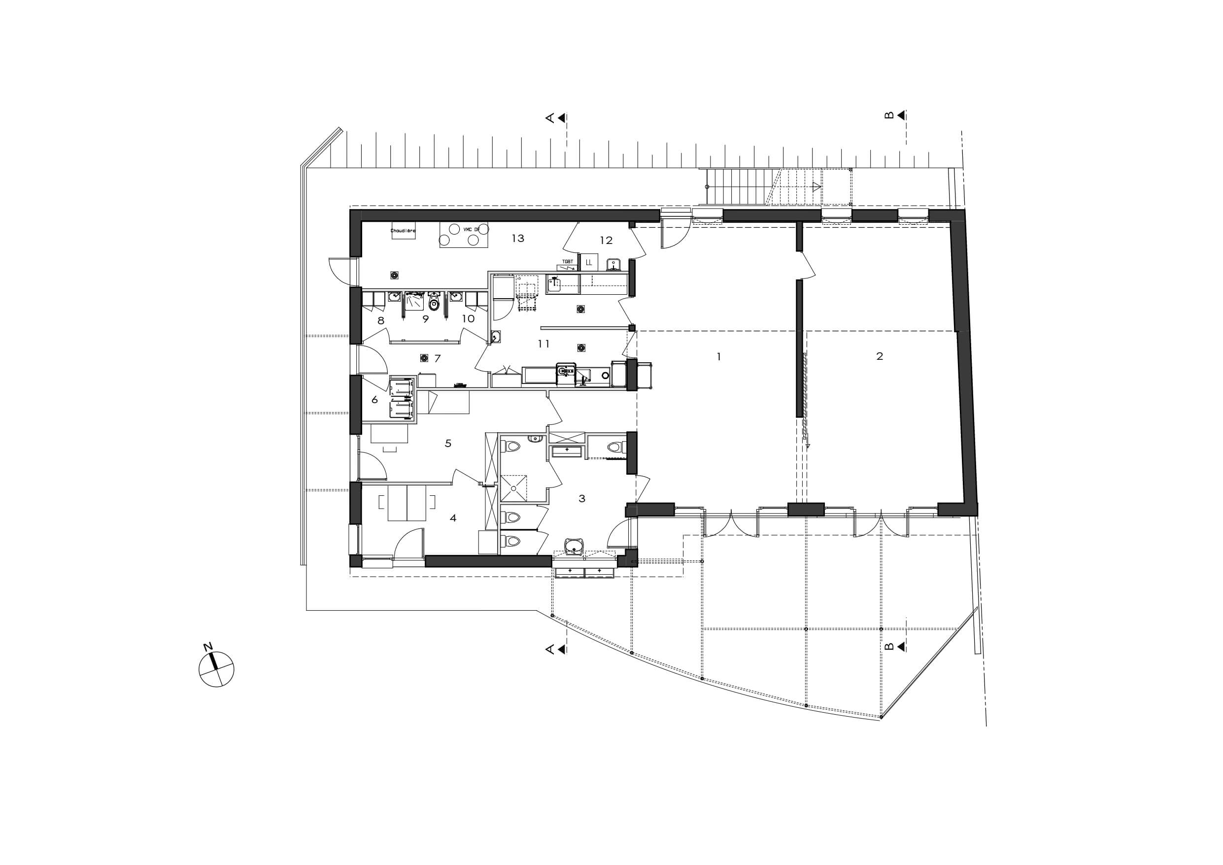
- Accueil de la petite enfance (35 enfants de 3 à 6 ans). Les enfants sont accueillis dans deux salles d’activités de 105m². Elles se prolongent sur une terrasse extérieure par de larges ouvertures.

- Bureau de direction et infirmerie

- Mezzanine dédiée aux animateurs et au personnel.

- Cuisine satellite

Les objectifs de performances énergétiques et qualitatives sont :

- Certification BEPOS et confort thermique, visuel et acoustique

- Expérimentation d’un mur en béton de chanvre local

construction / performance

Construction labellisée BEPOS

Construction à ossature bois

Isolation : fibre de bois et ouate de cellulose

Chauffage : central à gaz

Ventilation : VMC double flux