Ecole maternelle des Berthalais

Mirabel-et-Blacons, Drôme, 2018
Retour à la galerie de projetsRetour à la galerie de projets

Equipement public / Maîtrise d'ouvrage publique / Mission complète / Surface SHON: 40

programme

Extension d'une école maternelle

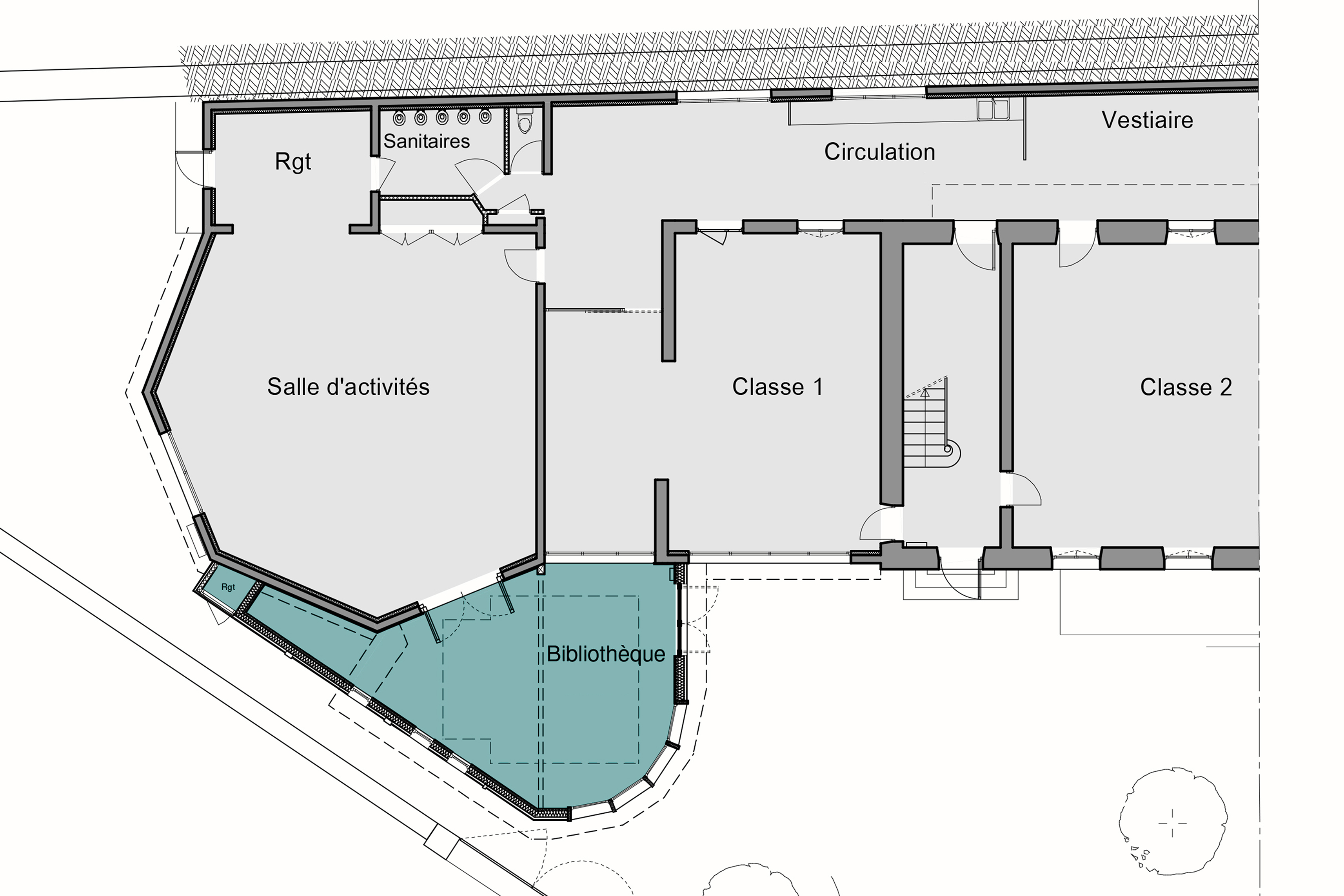
Le projet d’extension de l'école est né du besoin de séparer la salle de repos de la bibibliothèque, qui étaient jusqu’alors partagés dans le même espace. L'extension accueille ainsi une bibliothèque indépendante. Les containtes de maintenir l'accès par le portail principal, de conserver un espace de cour important et de créer une salle confortable, en lien avec l'extérieur et l'école, ont guidé le choix d'implantation. La courbe offre une vision panoramique sur l'extérieur. Les couleurs en façades créent un nouveau repère en bor de voirie pour l'école.

construction / performance

Construction à ossature bois

Isolation : fibre de bois et ouate de cellulose

Chauffage : PAC Air/Air

Ventilation : VMC simple flux